Tágas nappali, három hálószoba, különleges formák, egyedi tető és napfényben úszó üvegfelületek várnak rád. A kinyúló nagy felületű tető ideális az esővízgyűjtéshez. GRANA a fenntarthatóság és a szabadság élményét nyújtja minden nap. A szentendrei mintaházunk típusa.
MITŐL VÁLIK EGY BOLYGÓBARÁT HÁZ JÖVŐBIZTOSSÁ?
Egészséges
Az egészséges beltéri környezettel rendelkező ingatlanok átlagosan 8–12%-kal magasabb áron kelnek el.
Modern és energiatakarékos
Aki már a tervezés fázisában gondoskodik az okos energiatakarékos otthon kiépítéséről hosszú távon pénzt takarít meg.
Növeli értékét
Családok, befektetők, kivitelezők számára valódi pénzügyi és környezeti biztonságot nyújt.
VÁLASSZ OTTHONKÉSZ KIVITELEZÉST TÍPUSTERVEINKBŐL
Megtetszett valamelyik típustervünk, szeretnéd megvalósítani álmaid otthonát már meglévő telkedre? Kérd árajánlatunkat!
Éld át élőben: tapintsd, lásd, válassz! Foglalj időpontot mintaház-látogatásra, és fedezd fel a bolygóbarát otthon minden részletét!
Tetszik az elgondolás, de nem ezekben a házakban gondolkozol, erre is készültünk: tudunk adni neked bolygóbarát építészt. Tapasztalataink alapján az egyedi tervezés 6-12 hónap, az egyedi megoldások miatt a várható költségek 10-15%-kal lesznek magasabbak a típusházaknál.
GRANA – A természet ölelését hozza el otthonodba
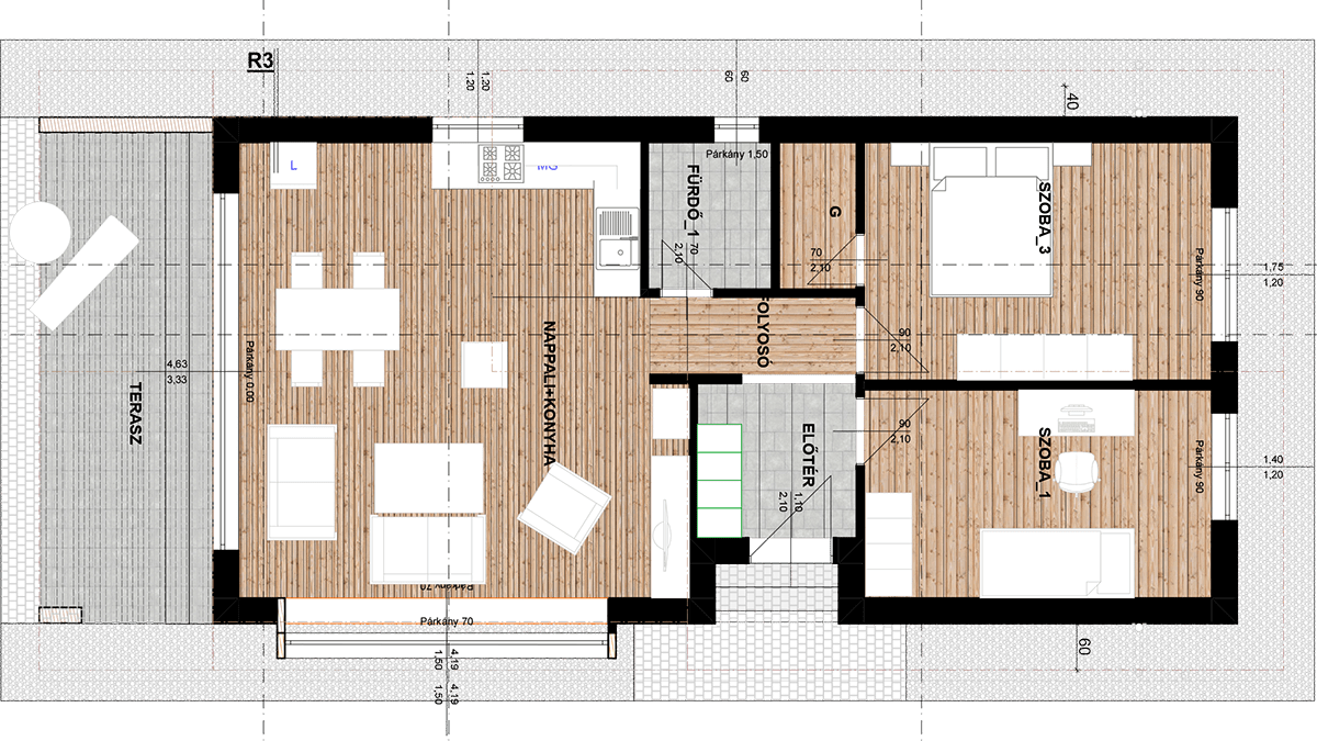
GRANA – 99,28 m2
(Nettó hasznos alapterület)*
-
- HELYISÉG NEVE M2
- ELŐSZOBA 3,9
- KÖZLEKEDŐ 6,88
- SZOBA 1 12,8
- SZOBA 2 11,86
- SZOBA 3 9,5
- GARDRÓB 1 3
- GARDRÓB 2 5,25
- NAPPALI+ÉTKEZŐ+KONYHA 35,13
- FÜRDŐSZOBA 1 5,24
- FÜRDŐSZOBA 2 5,72
- TERASZ 25,08
*Beépített terület: 124,36 m2
TERRA – A Föld szeretetteljes közelsége és az otthon melege
TERRA – 70,36 m2
(Nettó hasznos alapterület)*
- HELYISÉG NEVE M2
- ELŐSZOBA 4,11
- KÖZLEKEDŐ 2,67
- SZOBA 1 12,16
- SZOBA 2 13,87
- GARDRÓB 1,9
- NAPPALI+ÉTKEZŐ+KONYHA 32,61
- FÜRDŐSZOBA 3,04
- TERASZ 14,20
*Beépített terület: 84,56 m2
TERRA XL – Egyszerre ad szabadságot és összetartozást
TERRA XL – 79,07 m2
(Nettó hasznos alapterület)*
- HELYISÉG NEVE M2
- ELŐSZOBA 4,51
- KÖZLEKEDŐ 3,30
- SZOBA 1 12,16
- SZOBA 2 13,87
- GARDRÓB 1,9
- NAPPALI+ÉTKEZŐ+KONYHA 38,58
- FÜRDŐSZOBA 1 1,71
- FÜRDŐSZOBA 2 3,04
- TERASZ 17,42
*Beépített terület: 96,49 m2
THALYA – A nőies vonalak és a szerető gondoskodás szimbóluma
THALYA – 104,65 m2
(Nettó hasznos alapterület)*
- HELYISÉG NEVE M2
- ELŐSZOBA 4,72
- KÖZLEKEDŐ 3,52
- SZOBA 1 14,03
- SZOBA 2 10,09
- SZOBA 3 14,36
- NAPPALI+ÉTKEZŐ+KONYHA 45,51
- FÜRDŐSZOBA 1 5,77
- FÜRDŐSZOBA 2 6,65
- TERASZ 1 22,82
- TERASZ 2 10,73
*Beépített terület: 138,20 m2
MIT AD NEKED AZ OTTHONKÉSZ BOLYGÓBARÁT HÁZ?
Egészséges élettér, generációkon át
Természetes anyagok, lélegző falak, tiszta levegő – minden részletével óvja lakóinak egészségét, miközben környezetével összhangban működik. Egészséges, penész- és gombamentes életteret, fokozott hő- és hangszigetelést, valamint ideális páratartalmat biztosít.
Élhető terek egy szintre optimalizálva
A ház, a szerkezeti kialakításának köszönhetően rugalmasan igazodik életed változásaihoz – kényelmes otthon, lépcsőzés nélkül, minden életkorban.
Környezetbarát ház,
tiszta jövő
A Bolygóbarát házak öntött téglából épülnek, amelyek teljes életciklusra vetített karbonlábnyoma igazoltan 75%-kal kisebb, mint egy hasonló méretű modern téglaházé. A blokkwoodizált fából készült nyílászárók és természetes burkolatok számüzik a nehezen lebomló műanyagokat, házunk az életciklusa végén teljes mértékben újrahasznosítható.
Wabi-sabi otthon
A természetes tökéletlenség és egyszerűség harmóniája szakembereink által összehangolva. Megnyugtat, körülölel, és ösztönöz a lassabb, harmonikusabb életmódra.
Víztudatos mindennapok
Minden cseppjében ott az élet, védelmeznünk kell hát a XXI. század legnagyobb kincsét. Egy bolygóbarát ház összegyűjt, tisztít, használ, regenerál – oltalmazza az élet forrását.
Anyagi biztonság hosszú távon
Az új generációs, otthonkész Bolygóbarát házak valódi értéke abban rejlik, hogy maximális védelmet, kényelmet és jövőálló befektetést kínálnak – minden család számára.
ÖNELLÁTÓ BOLYGÓBARÁT HÁZ
Több energiát termel,
mint amit elfogyaszt
Rezsi nélküli élet? Ez már nem a távoli jövő, hanem nagyon is a jelen! A közművektől függetlenül, saját napelem-, vízgyűjtő és -kezelő rendszerével, valamint energiahatékony építészeti megoldásaival – magas szintű hőszigetelés, passzív hőmegtartás, megtervezett árnyékolás, automatizált vezérlés – képes fedezni energia- és vízszükségletét megkímélve ezzel pénztárcádat is.
0 Ft üzemanyagköltség
10 év múlva már csak elektromos autót vásárolhatunk, érdemes hát előre gondolkodni! Az öntött téglaház napelemrendszerének köszönhetően magadnak termelheted meg autód „üzemanyagát”, ezzel is csökkentve a környezetterhelést és az utazásra fordított összegeket.
Saját vízgyűjtő és
vízszűrő rendszer
Túlnyúló felületeivel egy 100 m2 alapterületű Bolygóbarát ház közel 180 m2-ről gyűjti az esővizet, aminek mennyisége évente akár 90 m3 is lehet. Ez a vízmennyiség okos felhasználással és a profi szennyvízkezelő rendszer alkalmazásával képes az otthonod teljes vízigényét biztosítani.
TELJES KÖRŰ SZOLGÁLTATÁS
Típusterv engedélyezés
Típusterveinket a meglévő telkedre vonatkozó előírások alapján nyújtjuk be.
Belsőépítészeti testreszabás
Régóta tudjuk: nem csak a külső számít. Segítünk a megfelelő stílusok, színek, anyagok kiválasztásában.
Kert, ami hazavár
Otthonod része a kerted is, erről sem feledkeztünk meg, szakembereink segítenek, hogy elképzeléseidet itt is megvalósíthasd.
Bútorozás
Válassz lakberendezőink segítségével beépített vagy egyedi bútort, spórolj 22% áfát, és teremts egyedi otthont kedvező áron.
Otthon 105 munkanap alatt
Álomotthon 105 munkanap alatt? Nálunk ez is lehetséges, ha típusházainkból választasz!
Otthonkész kivitelezés
Lépd át új otthonod küszöbét, és élvezd a bolygóbarát, mégis kényelmes életet. Ne feledd: egy álomotthon mindenkinek jár!
Típusterv engedélyezés
Típusterveinket a meglévő telkedre vonatkozó előírások alapján nyújtjuk be.
Belsőépítészeti testreszabás
Régóta tudjuk: nem csak a külső számít. Segítünk a megfelelő stílusok, színek, anyagok kiválasztásában.
Kert, ami hazavár
Otthonod része a kerted is, erről sem feledkeztünk meg, szakembereink segítenek, hogy elképzeléseidet itt is megvalósíthasd.Bútorozás
Válassz lakberendezőink segítségével beépített vagy egyedi bútort, spórolj 22% áfát, és teremts egyedi otthont kedvező áron.
Otthon 105 munkanap alatt
Álomotthon 105 munkanap alatt? Nálunk ez is lehetséges, ha típusházainkból választasz!
Otthonkész kivitelezés
Lépd át új otthonod küszöbét, és élvezd a bolygóbarát, mégis kényelmes életet. Ne feledd: egy álomotthon mindenkinek jár!
TECHNIKAI INFORMÁCIÓK, BOLYGÓBARÁT ELEMEK
A Bolygóbarát Ház olyan szakemberek együttműködéséből született, akik hisznek abban, hogy mindenkinek jár a kompromisszumoktól mentes otthon.
Építs hosszú távra, válassz tudatosan!
Öntött tégla házszerkezet
Előregyártott, de mégis nehéz falszerkezet, egyesíti a tégla megszokott tulajdonságait a gyorsépítés előnyeivel.
Tágas nappali
Minden emlékezetes családi pillanat helyszíne. A 3 m feletti belmagasság szabad levegőt, fényt és páratlan kényelmet ad otthonodnak – élvezd a valódi térélményt minden nap!
Fa nyílászárók
A blokkwoodizált fa ablakok valamint kül- és beltéri ajtók hosszú távú, környezetbarát megoldást kínálnak.
Egységes formanyelv
Nem neked kell kitalálnod a megoldásokat: a funkcionális elrendezéstől a stílusos berendezésekig mindent összehangolva, precízen kialakítottak és megterveztek szakembereink a te kényelmedért.
Különleges megoldások
Egy szint, emelt belmagasság, fedett terasz, ablak beülők és a nagy üvegfelületek több természetes fényt engednek be, míg a rejtett gépészet és okos tárolók, akár 6-7 m² helyet takarítanak meg egy 100 m²-es házban.
Okos ház és gépészet
Optimális szellőztetés, megfelelő hűtés-fűtés, ideális világítás, árnyékolás mindez a telefonodról vezérelve. Házaink smart home rendszerrel szereltek, ami veled együtt tud nőni – mindent távolról irányíthatsz.
Lélegző felületek
Légáteresztő kültéri vakolat, penészgátló, természetes festékek és egészségbarát burkolatok.
Vízgyűjtő rendszer
Integrált vízgyűjtő és elosztó hálózat, föld alatt elhelyezett tartályokkal szűrőkkel felszerelve. Öblíts és locsolj esővíz újrahasználásával– tisztán, fenntarthatóan, egyszerűen!
VÍZGYŰJTŐ RENDSZER
További részletekért és árajánlatért
keress minket az alábbi űrlap segítségével:







